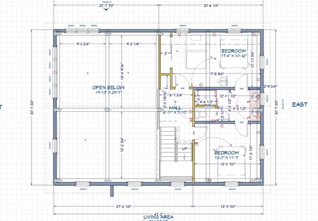
Here are a few pictures of what is now the latest addition to our rental properties. This “barn/house” is available for rent as of the summer/fall of 2025 and is much larger, with three bedrooms (two full baths & 2 half baths), easily accommodating two families with five queen beds, up to 8-9 people. We retained all of the hand hewn beams and barn board, but built in all the necessary modern amenities and more.



















